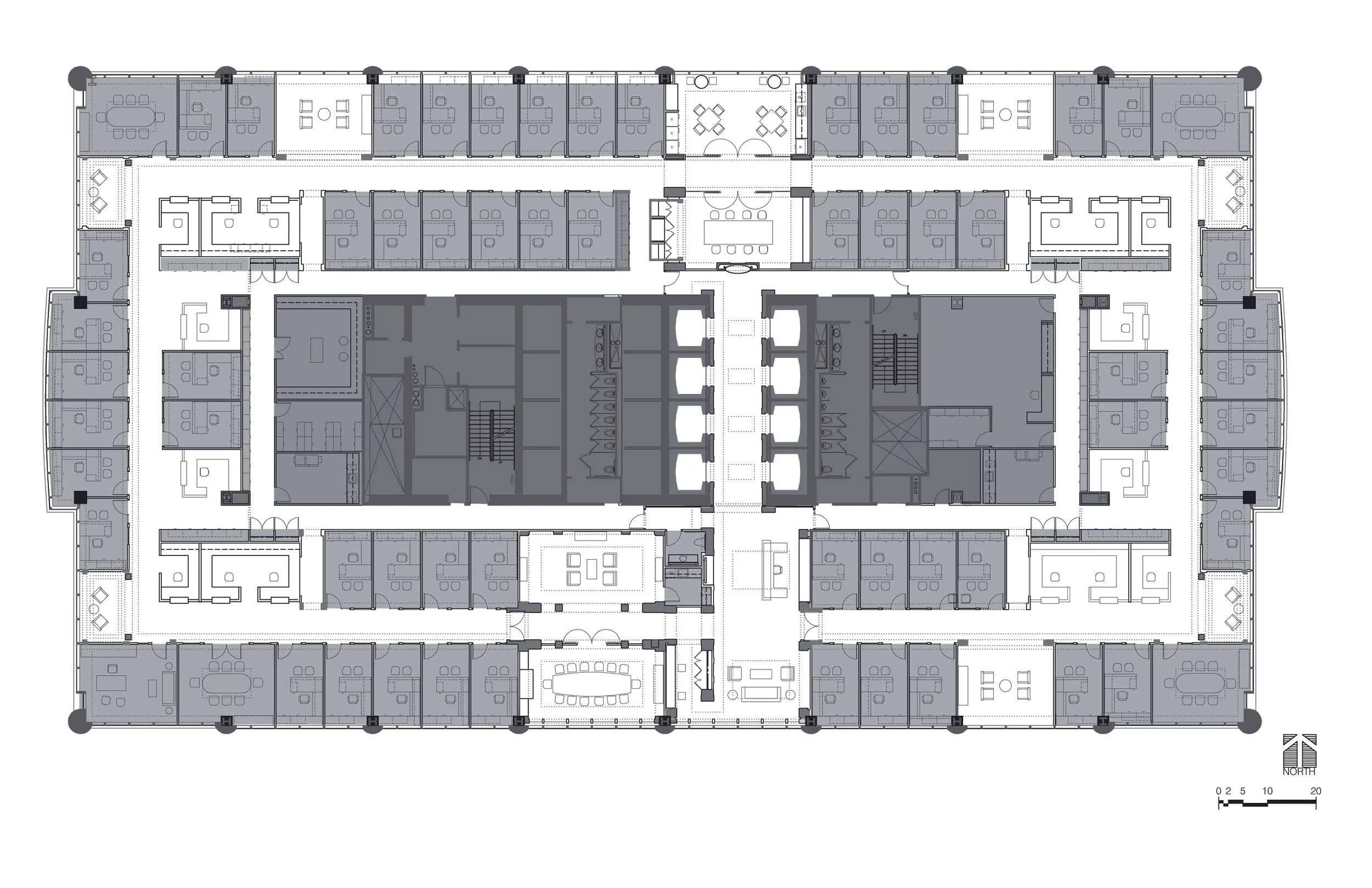
Corporate interiors for Adams St Partners in Chicago. Responsible for the complete architectural scope — plan geometry, classical millwork and plaster detailing, coffered ceilings, architectural lighting integration, specifications, and construction documents. The classical language throughout — columns, cornices, ceiling coffers, custom millwork — was developed and detailed in collaboration with the broader team