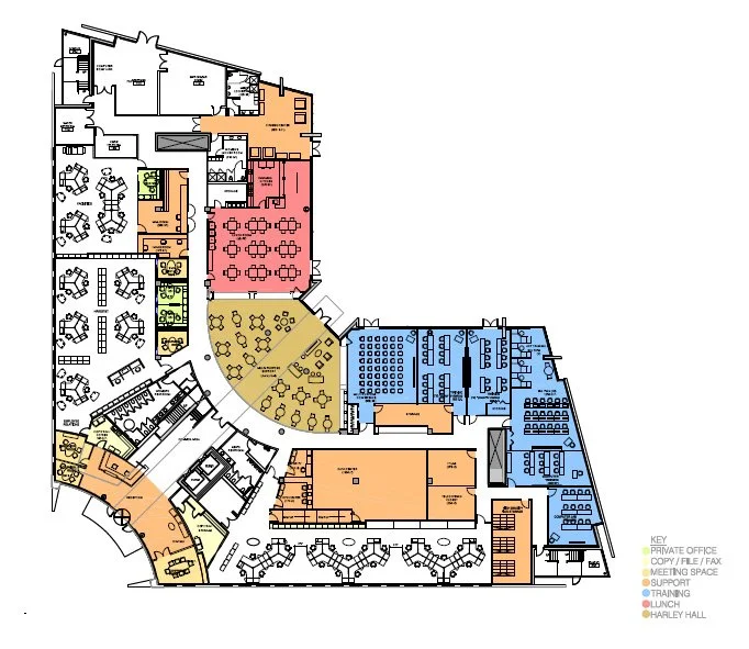
Harley-Davidson Financial Services

  • Budget: Undisclosed

  • Work: New 103,000 SF Call Center

  • Location: Reno, NV

    Interior architecture for Harley-Davidson Financial Services' call center and data center campus in Reno, NV. Brought in as interior architecture lead to coordinate and integrate the core and shell design alongside the lead architect, working across two studios under joint principal oversight. Responsible for construction documents, specifications, ceiling and lighting design, millwork details, and architectural finish integration throughout. The angular plan geometry and open atrium stair were key design challenges requiring close coordination with the architectural team.